参考資料
旧ギャルリー・タイセイホームページで公開していた資料です。
チャンディガールの都市計画と一連の作品
-

全体計画図
チャンディガール高等裁判所
-

平面図、断面図 -
スロープ折り返し部分からエントランス見る -
内部/スロープから廊下 -
内部/部屋前の廊下テラス -
外観/後ろ棟から本体を見る -
外観/エントランス -
外観全景
チャンディガール合同庁舎
-

平面図 -
外観/遠望/右に議事堂が半分見える -
外観/ほぼ全景/手前に広い駐車場 -
外観/ほぼ側面から全景 -
外観/全景遠望/草原に建つ
チャンディガール州議会議事堂
-

平面、断面、外観写真 -
全景/遠景 -
玄関側全景 -
外観/側面/角部分 -
主扉付近アップ -
議事堂側面外観全景 -
議事堂から伸びる渡り廊下 -
議事堂越しに庁舎/手前は水盤 -
議事堂外観全景/やや見下ろし -
外観全景/手前に水盤
チャンディガール美術館
-
付属展示施設/全景遠望 -
付属展示施設/側面から -
屋内/吹抜け空間/正面に階段 -
外観/横から/手前に水盤(水なし)/左手前に展示施設 -
屋内/展示室/ハイサイドライトから光が入る
チャンディガール/開いた手
-
外観全景 -
外観/部分
チャンディガール/影の塔
-
外観/超遠望 -
外観/遠くに議事堂が見える -
外観/左に影の塔/右奥に裁判所
繊維業会館
-

敷地配置図、模型写真 -

平面図、断面図 -
外観/スロープから外観見上げ -
屋内/吹抜け空間を見る -
半屋内/ブリーズソレイユと柱 -
外観/川側/深いブリーズソレイユ -
外観/川側/ほぼ全景 -
外観/川側/左手前にレストラン -
半屋内/ブリーズソレイユの角の部分 -
屋内/最上階/サンルーム的な空間 -
屋内/階段部分/縦位置 -
外観/通り側/ほぼ全景 -
屋内/奥にトイレ/手前に椅子
サラバイ邸
-

立面図、平面図 -
模型/全景横から/手前にプール -
模型/全景見下ろし/右にプール -
模型/全景見下ろし/奥にプール -
外観/庭側ほぼ全景 -
外観/プールへ延びる水落としと外階段 -
外観/庭側テラス斜めに
ショーダン邸
-

平面、断面、模型写真 -
模型/車庫側から/全景横から -
模型/スロープ側/全景見下ろし -
模型/玄関側/全景見下ろし -
模型/スロープ側/全景横から -
模型/庭側/外壁外して中を見る/全景横から -
模型/屋根を外して/全景見下ろし/手前にスロープ/奥に車庫 -
模型/屋根を外して/全景見下ろし/手前が庭/左に車庫 -
模型/屋根を外して/本体見下ろし/手前の車庫はカット -
模型/屋根を外して/ほぼ全景見下ろし/手前に車庫 -
屋内/1階吹抜けのある部屋 -
屋内/1階吹抜けのある部屋 -
屋内/玄関ホール/スロープが見える -
屋内/1階吹抜けのある部屋 -
外観/玄関側全景 -
外観/プール側部分/深いブリーズソレイユ -
外観/接近して見上げ -
外観/庭と玄関の角から見上げる -
外観/プール越しに全景を見る -
テラス/上階から吹抜けテラスと外階段を見下ろす -
屋内/1階吹抜けのある部屋/明るい陽射し/右はカーテン -
外観/全景遠望/玄関が少し見える
サンスカル・ケンドラ美術館
-
中庭/玄関へのスロープ -
ピロティ下 -
外観全景 -
中庭/スロープ見上げ
ジャウル邸
-

平面図、外観スケッチ -
外観/2棟の間の中庭から見る -
外観/奥側棟の全景 -
外観/通り側棟/玄関部分アップ -
外観/中庭から通り側棟の壁面 -
外観/側面/芝生 -
外観/奥側棟の壁面 -
外観/緑の芝生のある庭
カップ・マルタンの休暇小屋
-

平面図、立面図、断面図 -
外観全景
ナント・ルゼのユニテ
-
南東側外観 -
道路側外観 -
外観/ピロティ足元に池 -
外観/ピロティ越しに見る
ラ・トゥーレットの修道院
-

ル・トロネの修道院平面図 PDF -

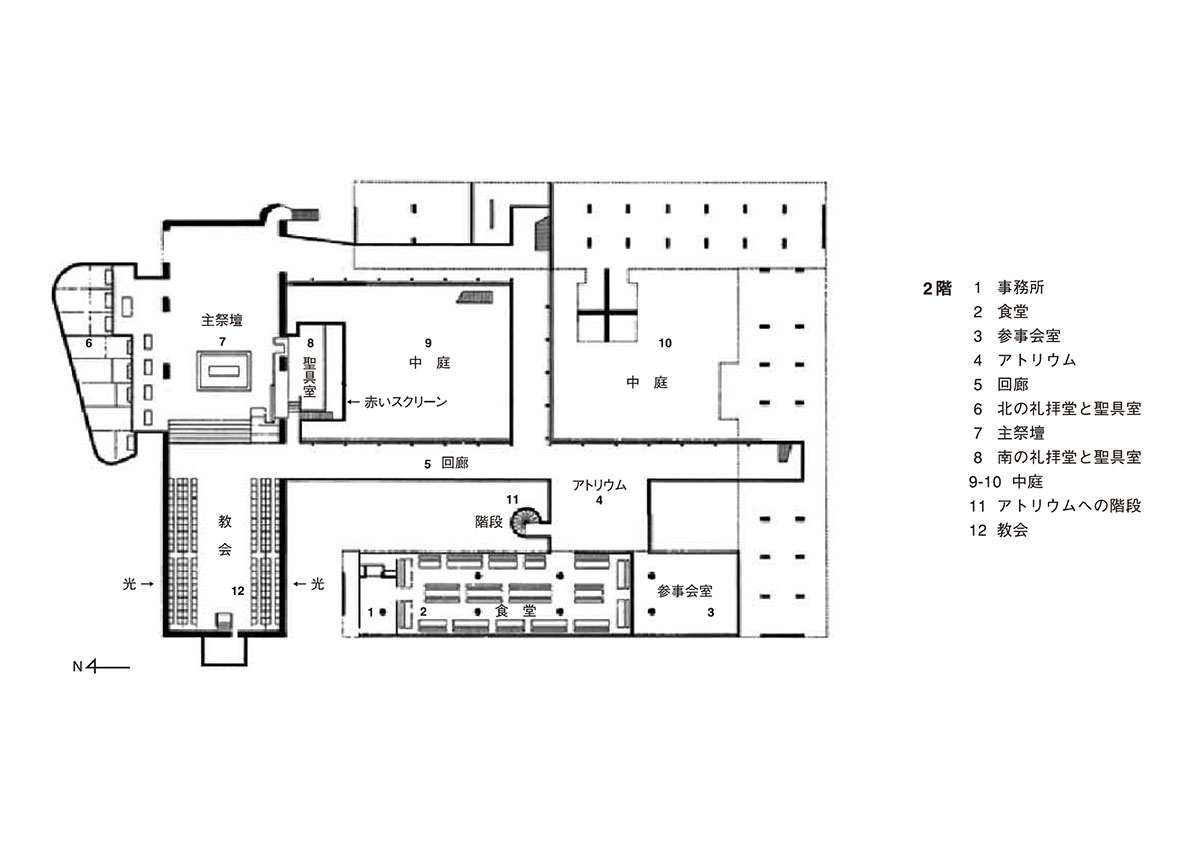
2階/平面図 PDF -

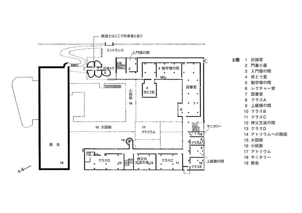
3階/平面図 PDF -

5階/平面図 PDF -

立面図 PDF -
模型/北西角から全景見上げ -
模型/北側外観/横から -
模型/全景見下ろし/手前が南 -
模型/南側外観/やや見上げ -
模型/全景見下ろし/手前が北 -
模型/全景見下ろし/手前が東 -
模型/全景やや見下ろし/西側 -
模型/西側全景/横から -
模型/西側から/全景やや見下ろし -
外観/入口含め東側全景 -
外観/光の機関銃 -
外観/中庭から玄関方向を見る -
屋内/礼拝堂の小祭壇 -
屋内/礼拝堂/左に赤い壁 -
外観/坂の下から南東側全景見上げ -
外観/南東の隅から全景 -
屋内/礼拝堂に向かう長廊下/左に中庭 -
外観/玄関から中庭を見る/左に小礼拝堂 -
屋内/礼拝堂/光の大砲を見る -
外観/北側見上げ
