参考資料
旧ギャルリー・タイセイホームページで公開していた資料です。
ファレ邸
-
庭側外観全景/見上げ -
外観/道路側全景
ジャクメ邸
-
外観/庭側/右下がりの斜面 -
外観/道路側部分 -
外観/玄関側全景
ストッツァー邸
-
外観/坂から見下ろす -
外観/坂下から見上げる -
外観/玄関部分を見下ろす -
外観/全景見上げ/特徴的な壁
旅の記録
-
ル・コルビュジエの三大ツアー
ジャンヌレ・ペレ邸
-

1階平面図とアクソメ PDF
ファヴル・ジャコ邸
-

図面と説明 PDF
シネマ・スカラ
-
外観/道路から -
外観/玄関周り見上げ -
外観/真正面から -

図面と説明 PDF
ドミノ・システム
-

説明図
シュウォブ邸
モノル住宅
-

外観、内観/スケッチ
シトロアン住宅
-

図面など/シトロアン1と2
イムーブル・ヴィラ
-

平面図/スケッチ
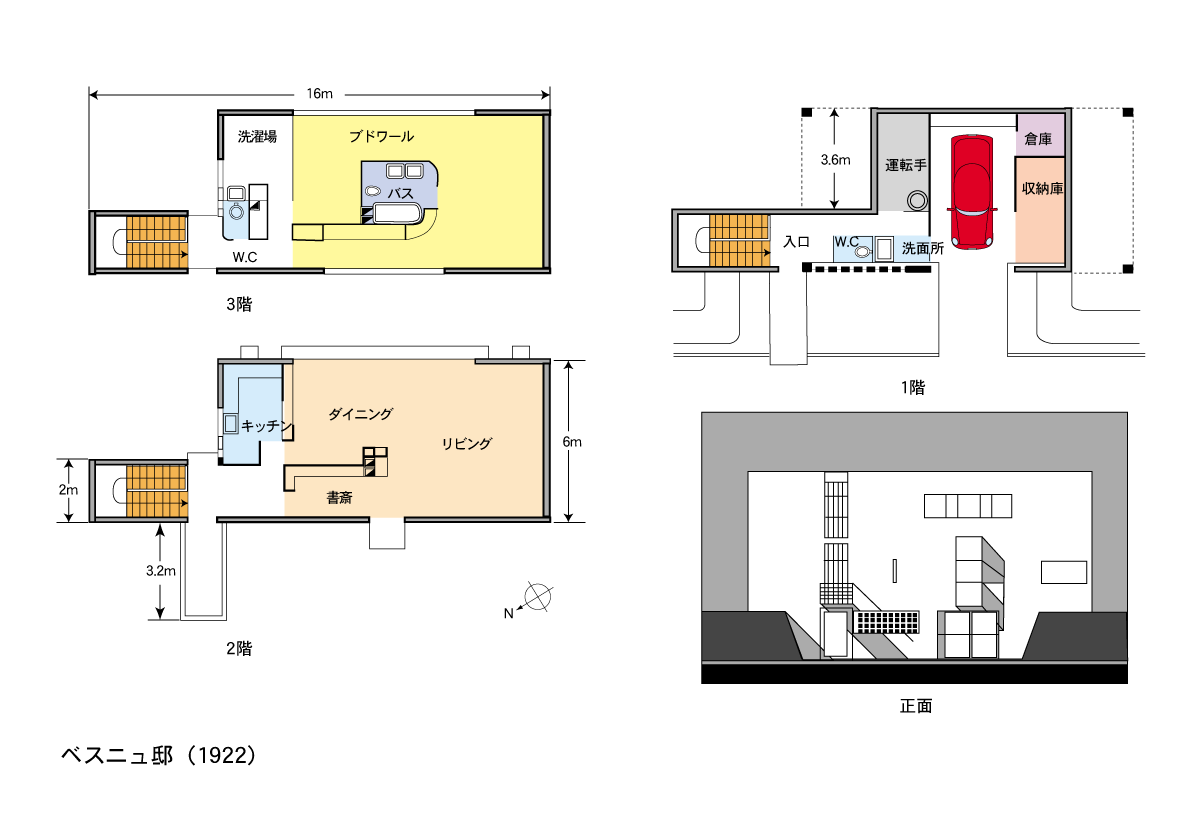
ベスニュ邸
-

平面図/立面図
オザンファン邸
-

敷地についての説明図 PDF -

平面図 -
断面模型/横から -
断面模型/見下ろし -
模型/見下ろし/表通り側が下 -
模型/見下ろし/玄関側 -
模型/通り側から裏側にかけて -
外観/全景/見上げ -
外観/表通り側全景
レマン湖の小さな家
-

断面図、平面図 -
外観/道路側/外壁とエントランス -
外観/湖側/外壁 -
屋内/客間方向を見る/庭へのドアは開いている -
外観/湖を望む小窓とベンチなど -
外観/道路側/全景 -
外観/塀の上から/客間入口側 -
屋内/母の部屋/右側が湖
リプシッツ+ミスチャニノフ邸
-
外観 -
外観 -
外観
ラ・ロッシュ+ジャンヌレ邸
-

平面図/1階、2階 PDF -
模型/敷地奥方向を見る/全体/見下ろし -
模型/裏側を見せる/全体/見下ろし -
模型/敷地入口方向を見る/全体/見下ろし -
模型/全体/玄関方向をやや斜めに見上げる -
模型/ギャラリーと裏側が見える -
模型/全体/敷地奥方向を見る -
模型/全体/見下ろし -
屋内/3階から吹抜けホール見下ろし -
外観/ピロティ下からジャンヌレ邸方向を見る -
屋内/ギャラリー/入口から見る -
外観/2棟を見渡す -
外観/ピロティ下
レスプリ・ヌーヴォー館
-

平面図、配置図など
レージュの住宅
-
外観/角の部分 -
外観/修復工事中 -
外観/家並み遠望
シテ・フリュジェス
-

いろいろなタイプの平面図 -

敷地配置図 -

外観/角から摩天楼方向の家並み -

屋内/摩天楼/見学用住居/真ん中に階段 -

外観/街区の入り口/家並み -

外観/アーケード型 -

外観/家並みを見下ろす
プラネクス邸
-

平面図、断面図 -
外観/道路側/斜め全景 -
外観/庭側のテラスと外階段見下ろし -
外観/道路側全景/通りを挟んで -
外観/道路側/張り出し部分のアップ -
外観/道路側/張り出し部分のアップ/左から
スタイン+ドゥ・モンジー邸
-

平面図/1~4階/カラー -

絵画とスタイン邸比較 PDF -

規準線の説明図 -
模型/外壁無し/全体/玄関側斜め見下ろし -
模型/外壁無し/4階平面/真上から -
模型/外壁無し/東側側面/横から -
模型/外壁無し/庭側(北側)/横から -
模型/外壁無し/西側側面/横から -
建築模型/外壁無し/1階/玄関側/斜め見下ろし -
建築模型/外壁無し/1階平面/真上から -
建築模型/外壁無し/2階/玄関側/斜め見下ろし -
建築模型/外壁無し/2階平面/真上から -
模型/玄関側(南側)外観/横から -
模型/東側外観/横から -
模型/北東側外観/横から -
模型/庭側(北側)外観/横から -
模型/北西側外観/横から -
模型/西側外観/横から -
模型/南西側外観/横から -
模型/全体/庭側/見下ろし -
模型/外壁無し/1階/やや斜めから全体/手前が玄関側 -
模型/全景見下ろし/やや庭側から -
模型/外壁無し/2階/やや斜めから全体/手前が玄関側 -
模型/外壁全景/庭側から -
外観/庭側ほぼ全景/見上げ -
外観/庭側部分/見上げ -
外観/2階テラス辺りを見上げる -
外観/玄関側全景/左右に樹木 -
外観/玄関側の角部分見上げアップ -
外観/玄関部分のアップ
クック邸
-

平面図/アクソメ図 -

立面図/断面図 -
外観/玄関側全景/車あり




